

Het project is gelegen in het stadspark van Sittard. De halfvrijstaande woning werd gebouwd in 1955. Het perceel heeft een lager gelegen oprit, waar oorspronkelijk een verbinding lag met de inpandige garage aan de achtergevel. Aan de achtergevel is het aangrenzende terras opgebouwd uit bakstenen terrastuinen.
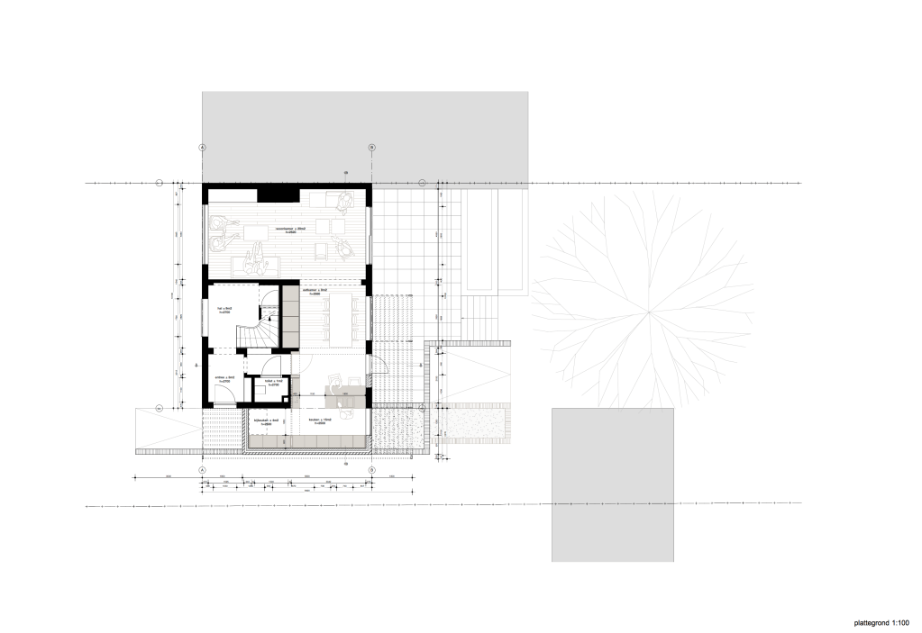
De opdrachtgever wenst een open keuken waardoor er een verbinding ontstaat met de rest van de woonvertrekken.Vanwege de ligging ten opzichte van de zon is het niet interessant gebleken een uitbouw aan de achterzijde van de woning te plaatsen, maar juist aan de zijgevel.
Naast de woning wordt er een bakstenen volume opgetrokken wat refereert aan de bestaande bakstenen terrastuinen. Deze sculpturale uitbouw wordt doorgetrokken naar de achtergevel waar nog eens twee bakstenen terrastuinen worden toegevoegd.
Het bakstenen volume wordt omarmt door een pergola-structuur om een subtiele overgang te creëren tussen de private woonruimtes en de buitenruimte. De constructie loopt vanaf de entree aan de zijgevel naar de achtergevel. Door de plaatsing van het volume en een lage bakstenen wand wordt de entree benadrukt. Een licht oplopende hellingbaan begeleid de bewoner richting de voordeur.
