Naar de inhoud springen

StudioRuigt

interieurarchitect | architectonisch vormgever

  • Home
  • filosofie
  • Roy Ruigt
  • Contact
Druk op enter om te zoeken
  • academisch project
  • architectuur
  • herstructurering bestaande woning
  • horeca herstructurering
  • interieurarchitectuur
  • maquette
  • samenwerking
  • studies
  • uitbouw bestaande woning
herstructurering bestaande woning2 januari 202618 januari 2026

Interieur V26

Lees Meer
herstructurering bestaande woning7 november 202518 januari 2026

V04-Noorbeek

Lees Meer
herstructurering bestaande woning  uitbouw bestaande woning16 augustus 202518 januari 2026

Aanbouw Maastricht G58B

Lees Meer
uitbouw bestaande woning16 juli 202518 januari 2026

AV81- Voorburg

Lees Meer
architectuur  interieurarchitectuur23 april 202418 januari 2026

Wijndomein Noorbeek

Lees Meer
herstructurering bestaande woning23 mei 202318 januari 2026

Venlo penthouse

Lees Meer
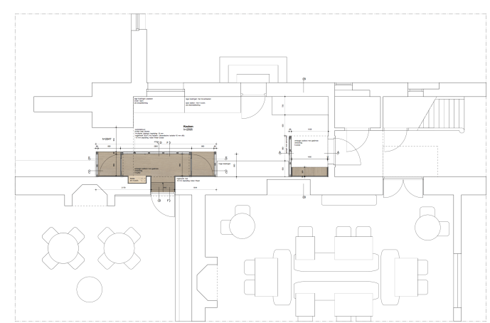
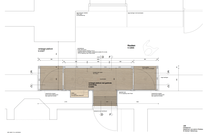
horeca herstructurering5 maart 202318 januari 2026

Interieurelementen st. Gerlach Valkenburg

Lees Meer
herstructurering bestaande woning14 februari 202312 augustus 2025

D02 Klimmen

Lees Meer
herstructurering bestaande woning13 juni 202212 augustus 2025

Aanbouw B20 Sittard

Het project is gelegen in het stadspark van Sittard. De halfvrijstaande woning werd gebouwd in 1955. Het perceel heeft een lager gelegen oprit, waar oorspronkelijk een verbinding lag met de inpandige garage aan de achtergevel. Aan de achtergevel is het aangrenzende terras opgebouwd uit bakstenen terrastuinen. De opdrachtgever wenst een open keuken waardoor er een…

Lees Meer

Pagina navigatie

  • 1
  • 2
  • 3
  • Volgende
Maak een website of blog op WordPress.com
StudioRuigt
Maak een website of blog op WordPress.com
  • Abonneren Geabonneerd
    • StudioRuigt
    • Heb je al een WordPress.com-account? Nu inloggen.
    • StudioRuigt
    • Abonneren Geabonneerd
    • Aanmelden
    • Inloggen
    • Deze inhoud rapporteren
    • Site in de Reader weergeven
    • Beheer abonnementen
    • Deze balk inklappen
 

Reacties laden....