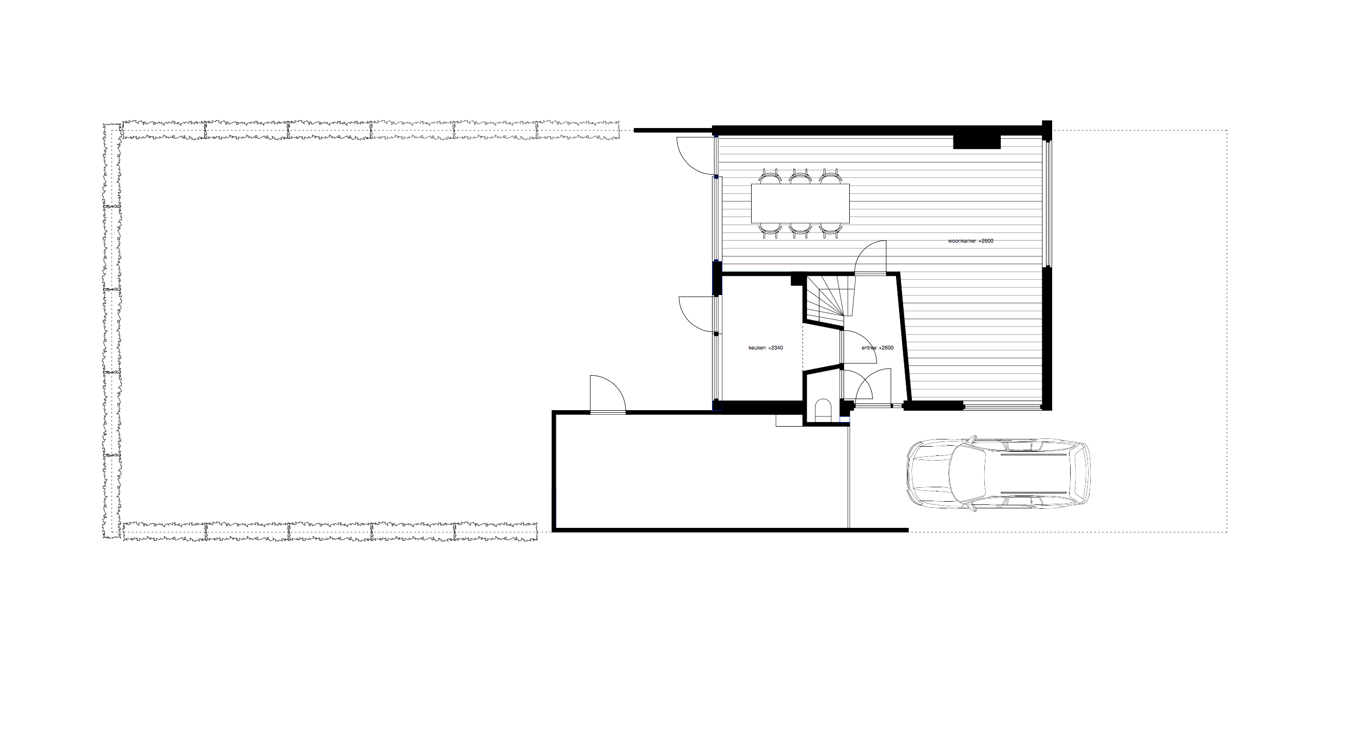
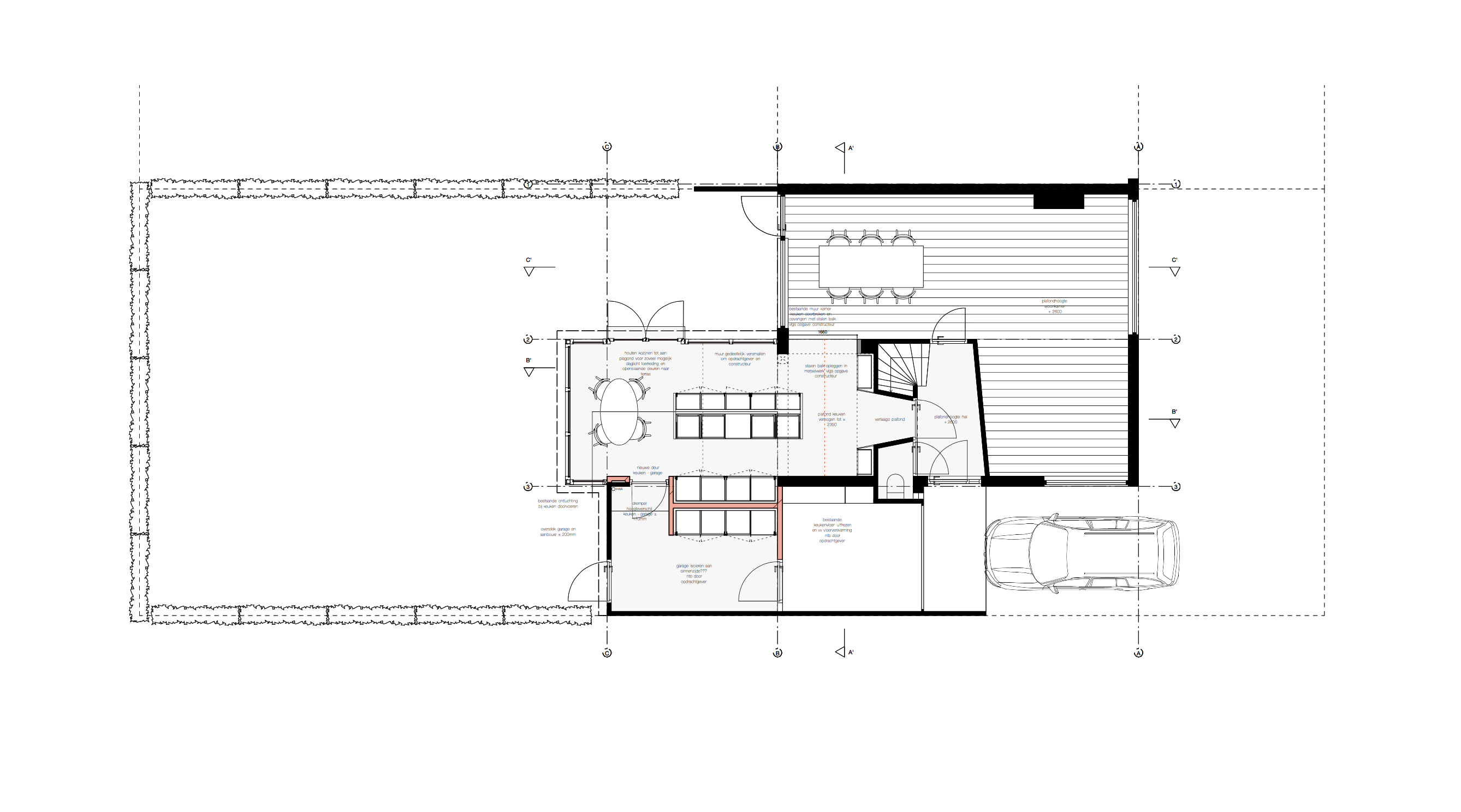
“De keuken als verbindend element tussen binnen en buiten” Bij deze relatief kleine verbouwing aan een woonhuis in Son en Breugel waren we verantwoordelijk voor het ruimtelijk ontwerp.
StudioRuigt ism Studio Richard de Boer






interieurarchitect | architectonisch vormgever
“De keuken als verbindend element tussen binnen en buiten” Bij deze relatief kleine verbouwing aan een woonhuis in Son en Breugel waren we verantwoordelijk voor het ruimtelijk ontwerp.
StudioRuigt ism Studio Richard de Boer





